Чертежи и схемы для постройки веранды и поленницы post thumbnail image

photo_1761423028103.jpgphoto_1761423028195.jpgphoto_1761423028240.jpgphoto_1761423028371.jpgphoto_1761423028467.jpgphoto_1761423028582.jpgphoto_1761423028673.jpg

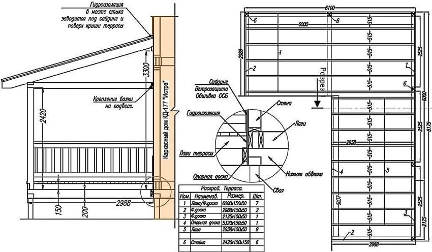
Чертежи и схемы для постройки веранды

Поленница — это не только красивый элемент декора, но и практичное решение для хранения дров. Мы подготовили детальные чертежи и схемы, которые помогут вам легко и быстро построить собственную поленницу, будь то простой навес или более сложная конструкция с крышей и стенками. В комплекте вы найдете подробные инструкции, список необходимых материалов и полезные советы от наших специалистов. Скорей подписывайся, чтобы получить доступ к эксклюзивным чертежам и начать строительство вашей идеальной веранды и поленницы уже сегодня!

Оставить ответ

Ваш адрес email не будет опубликован. Обязательные поля помечены *

Related Post

Удаление мха с гибкой черепицы с помощью медиУдаление мха с гибкой черепицы с помощью меди

Мох на гибкой черепице? Решение есть! Недавно в комментариях на канале обсуждалась возможная проблема с гибкой черепицей — мох на поверхности. Делимся одним из элегантных решений! На видео кровельщик показывает

Замена фундамента: Полное руководствоЗамена фундамента: Полное руководство

Процесс замены фундамента Мужик Строит Чат Поленница, как и старый фундамент, требует основательного подхода. Скорей подписывайся, чтобы увидеть, как мы демонтируем ветхие конструкции, вывозим строительный мусор и подготавливаем площадку для

Интересный способ наполнения бассейна на яхтеИнтересный способ наполнения бассейна на яхте

Интересный способ наполнения бассейна на яхте Интересный способ наполнения бассейна на яхте – это настоящее искусство! Представьте, как вода плавно переливается из встроенных форсунок, создавая эффект водопада или даже небольшой